- Woonoppervlakte
- Circa 103 m²
- Inhoud
- Circa 395 m³
- Bouwjaar
- Gebouwd in 1986
- Aantal kamers
- 4 kamers (1 slaapkamer)
STIJLVOL GERENOVEERDE WONING AAN DE RAND VAN HET CENTRUM MET EIGEN PARKEERGELEGENHEID!
Op zoek naar een mooie en speelse woning in het centrum van Lelystad? Dit is je kans! Deze nieuwe woning is recentelijk hoogwaardig gerenoveerd. Dankzij de grote raampartijen geniet de woning van een prettige, natuurlijke lichtinval. De woning beschikt over een royale woonkamer met moderne open keuken, drie kamers van goed formaat, een luxe badkamer en een eigen parkeerplaats op afgesloten terrein. Aan de voorzijde bevindt zich een kleine voortuin.
Je woont hier in het centrum van Lelystad, ideaal voor wie alle voorzieningen op loopafstand wil hebben!
Kom jij binnenkort thuis op deze leuke plek? Neem snel contact met ons op voor het plannen van een bezichtiging!
De gestelde prijs betreft een ‘bieden vanaf’ prijs. Ieder serieus voorstel boven de genoemde “bieden vanaf” prijs zal door verkopers in overweging worden genomen.
Over de ligging en de buurt
De woning ligt aan de rand van het stadshart van Lelystad. Winkels, horeca, het theater, de bioscoop een middagje winkelen, alles doe je gewoon te voet. Ook voor wie veel met het openbaar vervoer reist, is de ligging ideaal, want ook het station van Lelystad bevindt zich op loopafstand. En binnen circa 10 minuten bereik je de snelweg richting de Randstad.
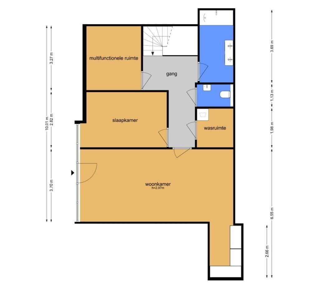
Indeling van de woning
Begane grond: Via de binnenhof van het complex bereik je de woning. De woonkamer is licht en sfeervol! De moderne open keuken is voorzien van een 2cm dik composieten blad en hoogwaardige inbouwapparatuur, waaronder een inductiekookplaat met geïntegreerde afzuiging, een combimagnetron/oven, koelkast, vriezer en een vaatwasser.
Aan de voorzijde bevindt zich een fijne, lichte slaapkamer. Daarnaast is een multifunctionele ruimte (zonder direct daglicht), die flexibel te gebruiken is.
De luxe badkamer is voorzien van een wastafel met meubel, verlichte spiegel en een inloopregendouche. Op deze woonlaag bevindt zich tevens een aparte was- en bergingsruimte en een separaat toilet.
Souterrain: Het souterrain biedt een volwaardige extra verdieping. Deze unieke benedenverdieping van 18m2 is eveneens multifunctioneel te gebruiken! Wat denk je van een gamekamer, thuisbioscoop of sportruimte?
De gehele woning is voorzien van vloerverwarming en een hoogwaardige PVC-visgraatvloer.
Tuin: Aan de voorzijde van de woning bevindt zich een kleine voortuin.
Parkeren: Parkeren kan op de afgesloten binnenplaats van het complex.
Let op: de woning is gelegen op erfpachtgrond. Dit kan invloed hebben op de financieringsmogelijkheden. Een startershypotheek is niet mogelijk.
Vraag naar je financiële mogelijkheden bij onze financieel adviseur.
Meer informatie? Kijk op
Kenmerken van de woning
• Grondig en hoogwaardig gerenoveerd woning
• Gelegen aan de rand van het centrum van Lelystad
• Twee fantastische multifunctionele ruimtes. Deze ruimtes hebben geen directe daglichttoetreding.
• Luxe nieuwe keuken en badkamer
• Volledig voorzien van vloerverwarming en luxe PVC-visgraatvloer
• Recentelijk gerenoveerd en instapklaar
• Parkeerplaats op afgesloten terrein
• Alle voorzieningen van het centrum binnen handbereik
• Energielabel: A
• Actieve en gezonde VvE
• Bijdrage VvE en servicekosten circa € 91,16 per maand
• Erfpacht circa € 155,78 per maand
• Aanvaarding op korte termijn mogelijk Lees de volledige omschrijving
Overdracht
- Vraagprijs
- € 289.500 k.k.
- Status
- Beschikbaar
- Aanvaarding
- In overleg
- Bijdrage VvE
- € 91,16 per maand
Bouw
- Object type
- Benedenwoning (appartement)
- Soort bouw
- Bestaande bouw
- Bouwjaar
- 1986
- Soort dak
- Plat dak bedekt met bitumineuze dakbedekking
Oppervlakte en inhoud
- Woonoppervlakte
- 103 m²
- Inhoud
- 395 m³
Indeling
- Aantal kamers
- 4 kamers (1 slaapkamer)
- Aantal badkamers
- 1 apart toilet
- Aantal woonlagen
- 2 woonlagen
- Gelegen op
- Begane grond
- Voorzieningen
- Frans balkon, lift, mechanische ventilatie, natuurlijke ventilatie, en TV kabel
Energie
- Energielabel
- A
- Energielabel registratie
- 07-04-2025
- Isolatie
- Dakisolatie, dubbel glas, hr-glas, muurisolatie, vloerisolatie en volledig geïsoleerd
- Verwarming
- Cv-ketel en gehele vloerverwarming
- Warm water
- Cv-ketel
- Cv ketel
- Intergas hr ketel (gas gestookt combiketel uit 2024, eigendom)
Buitenruimte
- Ligging
- In centrum
- Balkon / dakterras
- Frans balkon aanwezig
- Tuin
- Voortuin
- Afmetingen voortuin
- 8 m² (1,20 meter diep en 6,52 meter breed)
- ligging tuin
- Gelegen op het oosten
Garage
- Soort garage
- Parkeerplaats
Parkeergelegenheid
- Soort parkeergelegenheid
- Betaald parkeren, op afgesloten terrein, openbaar parkeren en parkeergarage
VvE checklist
- Inschrijving KvK
- Ja
- Jaarlijkse vergadering
- Ja
- Periodieke bijdrage
- Ja (€ 91,16 per maand)
- Reservefonds aanwezig
- Ja
- Onderhoudsplan
- Ja
- Opstalverzekering
- Ja
Energieverbruik in Lelystad
Energielabel deze woning
Energielabel A
Publicatie energielabel: 07-04-2025
Stroomverbruik per jaar
(Gemiddelde appartement in Lelystad)
Gasverbruik per jaar
(Gemiddelde appartement in Lelystad)
* Cijfers zijn afkomstig van het CBS en bedoeld als indicatie en kunnen verschillen voor deze woning
Indicatie hypotheeklasten
Eigen inleg:
Spaargeld / overwaarde
Rente:
Laagste 10-jaars rente
Laagste 10-jaars rente
2,78% - Centraal Beheer - NHG
3,04% - Centraal Beheer - 80%
Laagste 20-jaars rente
3,29% - Centraal Beheer - NHG
3,52% - Centraal Beheer - 80%
Laagste 30-jaars rente
3,41% - Centraal Beheer - NHG
3,7% - Argenta - 80%
Hypotheek:
Bruto maandlasten: € 0 p/m
Netto maandlasten: € 0 p/m
Hoe berekenen we dit?
Het rentepercentage is gebaseerd op de laagste 10 jaars vaste rente voor één hypotheekdeel. De vermelde rente (2.78% met NHG) is gecontroleerd op 13-04-2026. Deze berekening is gebaseerd op een annuïteitenhypotheek die volledig wordt afgelost, waarbij de maandlasten gedurende de gehele looptijd gelijk blijven. De werkelijke rente en netto maandlasten kunnen variëren, afhankelijk van uw persoonlijke situatie en de hypotheekverstrekker. Raadpleeg een financieel adviseur voor een nauwkeurige berekening en advies. Aan deze berekening kunnen geen rechten worden ontleend; het dient enkel als indicatie.
Documentatie
Kadastrale kaart
Leefomgeving
Brochure
WOZ waarderapport
BAG uittreksel
Plattegronden PDF
Bezoek onze website
Bezichtiging
Bod uitbrengen
Waardebepaling
Zoekopdracht
Alles downloaden
Zonnegrenzen bekijken
Inwoners in Lelystad
Cijfers voor postcodegebied 8232
- Totaal aantal inwoners
- 7385 inwoners
- Mannen
- 48%
- Vrouwen
- 52%
Inwoners in Lelystad
Cijfers voor postcodegebied 8232
- tot 15 jaar
- 17%
- 15 tot 25 jaar
- 10%
- 25 tot 35 jaar
- 28%
- 45 tot 65 jaar
- 23%
- 65 en ouder
- 22%
Huishoudens in Lelystad
Cijfers voor postcodegebied 8232
- Eenpersoons zonder kinderen
- 46%
- Meerpersoons zonder kinderen
- 23%
- Huishoudens zonder kinderen
- 69%
Huishoudens in Lelystad
Cijfers voor postcodegebied 8232
- Huishoudens met één kind
- 10%
- Huishoudens met meerdere kinderen
- 21%
- Huishoudens met kinderen
- 31%
Woningen in Lelystad
Cijfers voor postcodegebied 8232
- Woningen voor 1945
- 1%
- Woningen tussen 1945 en 1965
- 1%
- Woningen tussen 1965 en 1975
- 1%
- Woningen tussen 1975 en 1985
- 62%
- Woningen tussen 1985 en 1995
- 8%
Woningen in Lelystad
Cijfers voor postcodegebied 8232
- Woningen tussen 1995 en 2005
- 1%
- Woningen tussen 2005 en 2015
- 24%
- Woningen na 2015
- 4%
- Huurwoningen
- 60%
- Koopwoningen
- 40%
Overige in Lelystad
Cijfers voor postcodegebied 8232
- Gemiddelde WOZ waarde
- € 182.000,-
- Personen onder de 65 met uitkering
- 12%
Overige in Lelystad
Cijfers voor postcodegebied 8232
- Adressen per km²
- 2076
- Stedelijkheid (schaal 1 op 5)
- 80%
Korte feiten over Lelystad
Lelystad is de hoofdstad van de Nederlandse provincie Flevoland. De stad ligt in Oostelijk Flevoland en is daarvan de grootste stad, maar de gemeente ligt deels ook in Zuidelijk Flevoland.
Buisman Makelaars
Indien u vragen heeft of u wilt een bezichtiging inplannen, dan kunt u gebruik maken van het formulier hiernaast. Er zal daarna op korte termijn contact met u worden opgenomen.
Contact opnemen
Over Buisman Makelaars
Buisman Makelaars is een dynamisch en toegewijd makelaardijbureau gevestigd in het hart van Lelystad. Dit bureau onderscheidt zich door zowel de aan- en verkoop van bestaande woningen als de verkoop van nieuwbouwprojecten te faciliteren, en biedt tevens NWWI-gecertificeerde taxatierapporten aan.
Als lid van de Nederlandse Vereniging van Makelaars (NVM) legt Buisman Makelaars de nadruk op continue professionele ontwikkeling en een grondige presentatie van uw vastgoed. Uw woning of appartement wordt prominent gepresenteerd op platforms zoals Funda, diverse sociale media en onze eigen website.
De makelaars van ons kantoor staan officieel geregistreerd bij het Vastgoedcert en het NRVT. Zij voldoen tevens aan alle vereisten voor permanente educatie volgens de NVM, Vastgoedcert en NRVT, waardoor ze constant op de hoogte blijven van de laatste ontwikkelingen op de woningmarkt.
Nieuwste reviews
-
Zilverparkkade 48
Het proces is goed begeleid en naar onze tevredenheid. Men was altijd bereikbaar en er werd alert gereageerd. Korte lijnen.
-
Javier Mares
Onprofessioneel en volkomen respectloos, blijf liever uit de buurt van dit bedrijf.
-
Mart Perrels
Zekerheid bij je zoektocht naar een nieuw (t)huis? Dan moet je hier zijn! Kundig en behulpzaam...een kei in hun vak! Aanrader